ミスタービジネスから申込&入居で、物件毎に設定されたポイントを入居期間に応じてプレゼント! 電子マネー・デジタルギフトなど3,000種類の賞品と交換できます!

メイン画像

すべての写真(5枚)を見る

  • マンスリーマンション

マンスリーシズオカ/建物隣地に駐車場有♪エレベーター付き・オートロックで安心! C

お問合せ番号 : 7731

住所:静岡県静岡市駿河区泉町9-30

交通:

東海道・山陽新幹線 静岡駅 徒歩5

無料ネット回線(WiFi環境有り)。窓に囲まれた開放的なくつろぎのスペース。

お部屋の特徴

  • インターネット対応

  • 女性におすすめ

  • 駐車場付き

  • ポイント獲得

  • 敷金・礼金無料

  • 短期賃貸OK

  • 来店不要

  • 保証人不要

  • 敷金礼金無料

  • 入居可能人数1

  • クレジットカードOK

  • 駐車場あり

静岡県静岡市駿河区にある間取り1Rのマンスリーマンション物件です。ポイント獲得で、さまざまな商品・ポイント交換が可能です!

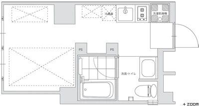
間取図・写真

※ 間取図・画像と現況が異なる場合は現況を優先します。

賃料・初期費用

基本料金プラン

月額固定

月額目安177,300円/月初期費用20,000円/回

月額固定利用時の料金詳細

月額賃料目安(30日利用)

賃料 :66,000円/月

光熱費他 :33,000円/月 (税抜)

清掃料他 :20,000円/回

その他費用 :

駐車場 :30,000円/月 (1,000円/日)

1名追加 :30,000円/月 (1,000円/日)

管理費 :15,000円/月 (500円/日)

※月額目安は1ヶ月を30日として計算した金額です。1日単位で利用期間を選択できます。お客様による水道・電気・ガス等の開栓手続き・契約は不要です。

希望の日程でシミュレーションしてみましょう!

オプション料金

オプション料金の設定はありません。

マンスリー専用コールセンターを

ご用意しています

お部屋のこと、契約のことなどご不明点はお気軽に

お問い合わせください

通話料無料で安心サポート

フリーダイヤル0120-302-190

受付時間:平日 10:00-17:00

社宅代行・出張・転勤・リロケーション・中・長期滞在ならミスタービジネス 急な出張や転勤・社宅代行業務ならミスタービジネスにお任せ下さい。

物件概要

  • 所在地

    静岡県静岡市駿河区泉町9-30 マンスリーシズオカ

  • 物件種別

    マンション

  • 間取り・面積

    1R / 21.29

  • 建物構造

    RC(鉄筋コンクリート)

  • 築年数

    2009年11月 (築16年)

  • ベットタイプ

    シングルベッド

  • 階建・総戸数

    地上9階建 / 4階 | 48戸

  • 鍵の種類

  • 部屋の向き

  • 禁煙・喫煙

  • 交通

    東海道・山陽新幹線 静岡駅 徒歩5

  • 定員

    1

  • 駐車場

    あり(空き要確認)

  • 次回更新日

    情報更新日より14日以内

  • 情報更新日

    2026年3月31日

  • 建物隣地に駐車場がございます。(30,000円/月、1,000円/日) 台数に限りがございますので、ご希望の場合は担当までお問合せ下さい。

設備・家具家電情報

  • 建物設備

    エレベーターオートロック宅配ボックス駐輪場自動販売機
  • 部屋設備

    インターネット対応バス・トイレ別クローゼットフローリング洗浄機能付き便座独立洗面台
  • 家電

    冷蔵庫洗濯機電子レンジテレビ・テレビ台掃除機炊飯器ドライヤーコンロエアコンアイロン

マンスリー専用コールセンターを

ご用意しています

お部屋のこと、契約のことなどご不明点はお気軽に

お問い合わせください

通話料無料で安心サポート

フリーダイヤル0120-302-190

受付時間:平日 10:00-17:00

社宅代行・出張・転勤・リロケーション・中・長期滞在ならミスタービジネス 急な出張や転勤・社宅代行業務ならミスタービジネスにお任せ下さい。

申込・契約情報

マンスリーシズオカ/建物隣地に駐車場有♪エレベーター付き・オートロックで安心!」の契約方法についてご説明します。

  • 契約形態・取引形態

  • 保証人

    不要

  • 入居時間・退居時間

アクセス・地図

この物件の最寄り駅は東海道・山陽新幹線静岡駅徒歩5分です。

マンスリーマンション運営会社情報

会社名:株式会社アイワ不動産

所在地:〒4200034静岡県静岡市 葵区常磐町1丁目番地7-8コアシティ2階 賃貸開発事業本部|免許番号:宅建業免許 静岡県知事[5]第11701号

営業時間/10:00- 17:00 定休日/

    スタッフからのコメント

    出張、研修、引っ越しまでの繋ぎや仮住まいなど、 多くの用途にご利用いただいております。 ご不明な点等がございましたら、お気軽にご連絡ください。

    マンスリー専用コールセンターを

    ご用意しています

    お部屋のこと、契約のことなどご不明点はお気軽に

    お問い合わせください

    通話料無料で安心サポート

    フリーダイヤル0120-302-190

    受付時間:平日 10:00-17:00

    社宅代行・出張・転勤・リロケーション・中・長期滞在ならミスタービジネス 急な出張や転勤・社宅代行業務ならミスタービジネスにお任せ下さい。

    この物件をお気に入りに保存して後で比較する

    静岡県の地域情報から探す

    静岡県のウィークリー・マンスリーマンションを住所一覧から探す

    静岡県のウィークリー・マンスリーマンションを沿線・駅一覧から探す