ミスタービジネスから申込&入居で、物件毎に設定されたポイントを入居期間に応じてプレゼント! 電子マネー・デジタルギフトなど3,000種類の賞品と交換できます!

メイン画像

すべての写真(3枚)を見る

  • マンスリーマンション

マイナビSTAY京急鶴見 702

お問合せ番号 : 17765

住所:神奈川県横浜市鶴見区鶴見中央4丁目8-16

交通:

京浜急行電鉄本線 京急鶴見駅 徒歩3

鶴見線 鶴見駅 徒歩6

京浜東北・根岸線 鶴見駅 徒歩6

マイナビBizでは、入居期間中にお客様が安心・快適な生活をお送りいただくことを最優先に、入居サポートサービスを充実させています。入居期間中、サービスコールセンター、駆けつけサービス、家財補償、医療・介護・育児相談など生活を全般的にサポートいたします!

キャンペーン情報

特典キャンペーン60日以上の利用が断然お得✨賃料お値引き&初期費用(最大38,500円)OFFの特典つき!

特典内容をみる

特典内容

期間限定のお得キャンペーンを開催中!賃料お値引き&初期費用38,500円OFF他! 【 特典① 】賃料期間限定 お値下げ! 【 特典② 】契約事務手数料 通常22,000円が無料! 【 特典③ 】寝具レンタル代 通常16,500円が無料! 【 特典④ 】入居サポート費用 日額110円/日(3,300円/月)も無料!

利用条件

以下すべての条件を満たすお客様が対象です ・ご新規でご利用のお客様 ・60日以上ご入居いただけるお客様 ・ご覧のサイト名称をお伝えいただいたお客様 ※本キャンペーンは60日以上ご入居いただけるお客様限定です。 ※ご入居期間が60日未満のお客様は、別途お送りするお見積書で金額をご確認ください。 ※延長(再契約)をご希望の際は、別途お問い合わせください。 ※本物件の最低契約日数は30日です。

対象期間

2026年4月9日~2026年4月25日

空室がなくなり次第終了します。

お部屋の特徴

  • インターネット対応

  • 2人以上の入居OK

  • ポイント獲得

  • 敷金・礼金無料

  • 短期賃貸OK

  • キャンペーン

  • 来店不要

  • 保証人不要

  • 敷金礼金無料

  • 入居可能人数2

  • クレジットカードOK

  • 駐車場-

神奈川県横浜市鶴見区にある間取り1Kのマンスリーマンション物件です。ポイント獲得で、さまざまな商品・ポイント交換が可能です!

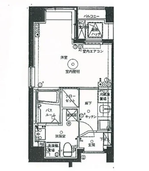
間取図・写真

※ 間取図・画像と現況が異なる場合は現況を優先します。

賃料・初期費用

基本料金プラン

ロング

7以上~24未満

月額目安176,400円/月初期費用27,500円/回

ロング利用時の料金詳細

月額賃料目安(30日利用)

賃料 :132,000円/月 (4,400円/日)

光熱費他 :24,000円/月 (800円/日) (税抜)

清掃料他 :25,000円/回 (税抜)

その他費用 :

共益費 :18,000円/月 (600円/日)

ミドル

3以上~7未満

月額目安176,400円/月初期費用27,500円/回

ミドル利用時の料金詳細

月額賃料目安(30日利用)

賃料 :132,000円/月 (4,400円/日)

光熱費他 :24,000円/月 (800円/日) (税抜)

清掃料他 :25,000円/回 (税抜)

その他費用 :

共益費 :18,000円/月 (600円/日)

ショート

1以上~3未満

月額目安182,400円/月初期費用27,500円/回

ショート利用時の料金詳細

月額賃料目安(30日利用)

賃料 :138,000円/月 (4,600円/日)

光熱費他 :24,000円/月 (800円/日) (税抜)

清掃料他 :25,000円/回 (税抜)

その他費用 :

共益費 :18,000円/月 (600円/日)

期間限定費用
繁忙期退去特別費用50,000/ (税抜)

※月額目安は1ヶ月を30日として計算した金額です。1日単位で利用期間を選択できます。お客様による水道・電気・ガス等の開栓手続き・契約は不要です。

この物件はキャンペーン設定あり! いますぐ、希望の日程でシミュレーションしてみましょう!

オプション料金

人数追加(光熱費)

1名追加につき追加費用が加算されます。

550円/日

マンスリー専用コールセンターを

ご用意しています

お部屋のこと、契約のことなどご不明点はお気軽に

お問い合わせください

通話料無料で安心サポート

フリーダイヤル0120-302-190

受付時間:平日 10:00-17:00

社宅代行・出張・転勤・リロケーション・中・長期滞在ならミスタービジネス 急な出張や転勤・社宅代行業務ならミスタービジネスにお任せ下さい。

物件概要

  • 所在地

    神奈川県横浜市鶴見区鶴見中央4丁目8-16

  • 物件種別

    マンション

  • 間取り・面積

    1K / 20.17

  • 建物構造

    RC(鉄筋コンクリート)

  • 築年数

    2007年7月 (築18年)

  • ベットタイプ

    セミダブルベッド

  • 階建・総戸数

    地上9階建 / 7階 | 24戸

  • 鍵の種類

  • 部屋の向き

    北西

  • 禁煙・喫煙

    禁煙

  • 交通

    京浜急行電鉄本線 京急鶴見駅 徒歩3

    鶴見線 鶴見駅 徒歩6

    京浜東北・根岸線 鶴見駅 徒歩6

  • 定員

    2

  • 駐車場

    なし

  • 次回更新日

    情報更新日より14日以内

  • 情報更新日

    2026年4月1日

よくある質問

「マイナビSTAY京急鶴見」に寄せられるよくある質問をまとめました。

お部屋

家具や電化製品の持ち込みはできますか?

お持ち込みいただけます。
ただし、標準設備として部屋に備え付けの家具・家電以外の扱いについては当社では責任を負いかねます。あらかじめご了承ください。
また、お持ち込みいただいた家具や家電はご退去時にご自身で撤去をお願いします。

お部屋

喫煙はできますか?

弊社が取扱うお部屋はすべて禁煙でございます。

設備・家具家電情報

  • 建物設備

    エレベーターオートロック宅配ボックス防犯カメラ
  • 部屋設備

    インターネット対応バス・トイレ別クローゼットフローリング浴室乾燥機洗浄機能付き便座ベランダ独立洗面台
  • 家電

    冷蔵庫洗濯機電子レンジテレビ・テレビ台掃除機コンロエアコン

マンスリー専用コールセンターを

ご用意しています

お部屋のこと、契約のことなどご不明点はお気軽に

お問い合わせください

通話料無料で安心サポート

フリーダイヤル0120-302-190

受付時間:平日 10:00-17:00

社宅代行・出張・転勤・リロケーション・中・長期滞在ならミスタービジネス 急な出張や転勤・社宅代行業務ならミスタービジネスにお任せ下さい。

申込・契約情報

マイナビSTAY京急鶴見」の契約方法についてご説明します。

  • 契約形態・取引形態

    定期借家契約|貸主

  • 保証人

    不要 保証人は不要です。(緊急連絡先は必要)

  • 入居時間・退居時間

    入居時間: 15時00分以降、退居時間:15時00分

アクセス・地図

この物件の最寄り駅は京浜急行電鉄本線京急鶴見駅徒歩3分鶴見線鶴見駅徒歩6分京浜東北・根岸線鶴見駅徒歩6分です。

マンスリーマンション運営会社情報

会社名:株式会社マイナビ

所在地:〒1040061東京都中央区銀座4丁目番地12-15 歌舞伎座タワー 26F|免許番号:東京都知事免許(1)第104894号

営業時間/9:30 ~ 17:30 定休日/土日・祝祭日・お盆・年末年始

    スタッフからのコメント

    快適で安心な住まいをご提供。入居者様の住み心地と健康を考え、専門部隊がお部屋を厳選!入居者満足度97%!

    マンスリー専用コールセンターを

    ご用意しています

    お部屋のこと、契約のことなどご不明点はお気軽に

    お問い合わせください

    通話料無料で安心サポート

    フリーダイヤル0120-302-190

    受付時間:平日 10:00-17:00

    社宅代行・出張・転勤・リロケーション・中・長期滞在ならミスタービジネス 急な出張や転勤・社宅代行業務ならミスタービジネスにお任せ下さい。

    この物件をお気に入りに保存して後で比較する